Projektuojamas kompaktiškas, šiuolaikiškos architektūros vieno aukšto namas su antresole.
Pastato tūris paprastas, aiškių geometrinių formų, dengtas dvišlaičiu stogu, leidžiančiu racionaliai išnaudoti vidinį pastato tūrį.
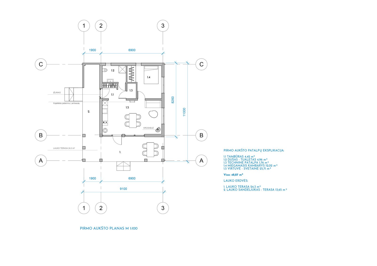
Bendras pastato plotas siekia iki 50 m², papildomai numatyta ~12 m² antresolė. Funkcinis išplanavimas pagrįstas aiškiu gyvenamosios ir pagalbinės zonos atskyrimu.
Pagrindinė virtuvės–svetainės erdvė orientuota į lauko pusę su numatyta terasos zona. Dideli langų plotai užtikrina pakankamą natūralų apšvietimą ir vizualinį ryšį su aplinka.
Prie įėjimo projektuojamas integruotas sandėliukas, skirtas buitinių daiktų laikymui.
Antresolė įrengiama virš dalies pirmo aukšto patalpų, išlaikant atvirą erdvę virš svetainės.
Fasadui numatyta degintos medienos apdaila, pabrėžianti pastato architektūrinį charakterį. Stogo danga – valcuoto tipo „Classic” skarda, atitinkanti šiuolaikinius ilgaamžiškumo ir estetikos reikalavimus.
TM 1 karkasinio namo kaina su projektu ir statybos leidimu A+ nuo 50000 Eur su PVM.
50 m2 + 12 m2 antresolė:
Stogas – Classic skarda, lietaus surinkimo sistema;
Lauko fasadas – degintos medienos dailylentės;
Langai : Plastimet CLICK-ON AD, tristiklis stiklo paketas su selektyviniu stiklu.
Numatomas namo apšiltinimas akmens vata, atitinkantis A+ energinio naudingumo klasės reikalavimus, geras garso izoliacines savybes, konstrukcinį ilgaamžiškumą ir labai geras priešgaisrines savybes.
Dalinė vidaus apdaila;
Kas neįskaičiuota: namo pamatas, terasa, inžinerinės sistemos.







