TERA1
Karkasinio namo projektas
- Bendras plotas 62 m2
- Integruotas sandeliukas
- A energinio naudingumo klasė

Apie projektą
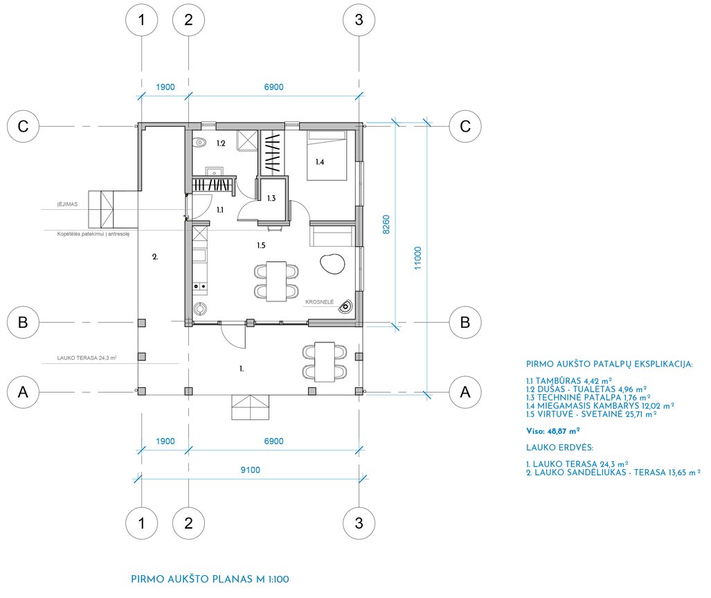
Vieno aukšto karkasinis namas su antresole. Bendras namo plotas su antresole siekia 62 m²
Antresolė virš dalies pirmo aukšto patalpų
Dideli langai ir numatyta terasos zona
Integruotas sandėliukas prie įėjimo
Degintos medienos fasadas
Bendras plotas
50 m² + 12 m² antresolė
Projekto kaina nuo
50 000 € su PVM

Įskaičiuota į projekto kainą
Aiškiai nurodome, kas įskaičiuota į namo kainą ir kokie darbai atliekami papildomai.
- Konstrukcija: karkasinis namas 50 m² + 12 m² antresolė
- Stogas: „Classic“ skardos danga su lietaus sistema
- Fasadas: degintos medienos dailylentės
- Langai: Plastimet CLICK-ON AD, 3 stiklų selektyviniai paketai
- Šiltinimas: akmens vata, atitinkanti A energinės klasės reikalavimus
- Vidaus apdaila: dalinė vidaus apdaila
Neįskaičiuota
Įrengiama papildomai
- Pamatai
- Terasa
- Inžinerinės sistemos
- Projektas ir leidimai
Pritaikysime projektą jūsų poreikiams
Galimi išplanavimo, langų ir terasos sprendimų pakeitimai.
Daugiau projektų
nuo 55 000 €

TERA2
Vieno aukšto karkasinis namas su antresole. Bendras namo plotas su antresole siekia 78 m²
- Bendras plotas 78 m2
- Integruotas sandeliukas
- A energinio naudingumo klasė












